dak Mark IX
Documentation Project
CBTricks.com

TIPS:
You need to have Acrobat Reader version 5 or newer installed to view the files with icon.

If the files with or icon will not display see the Site FAQ for help on printing, viewing and using this information.


Click picture to see close-up

ALIGNMENT PROCEDURES
     Alignment
     VCO Frequency Generation Chart

 

DIAGRAMS
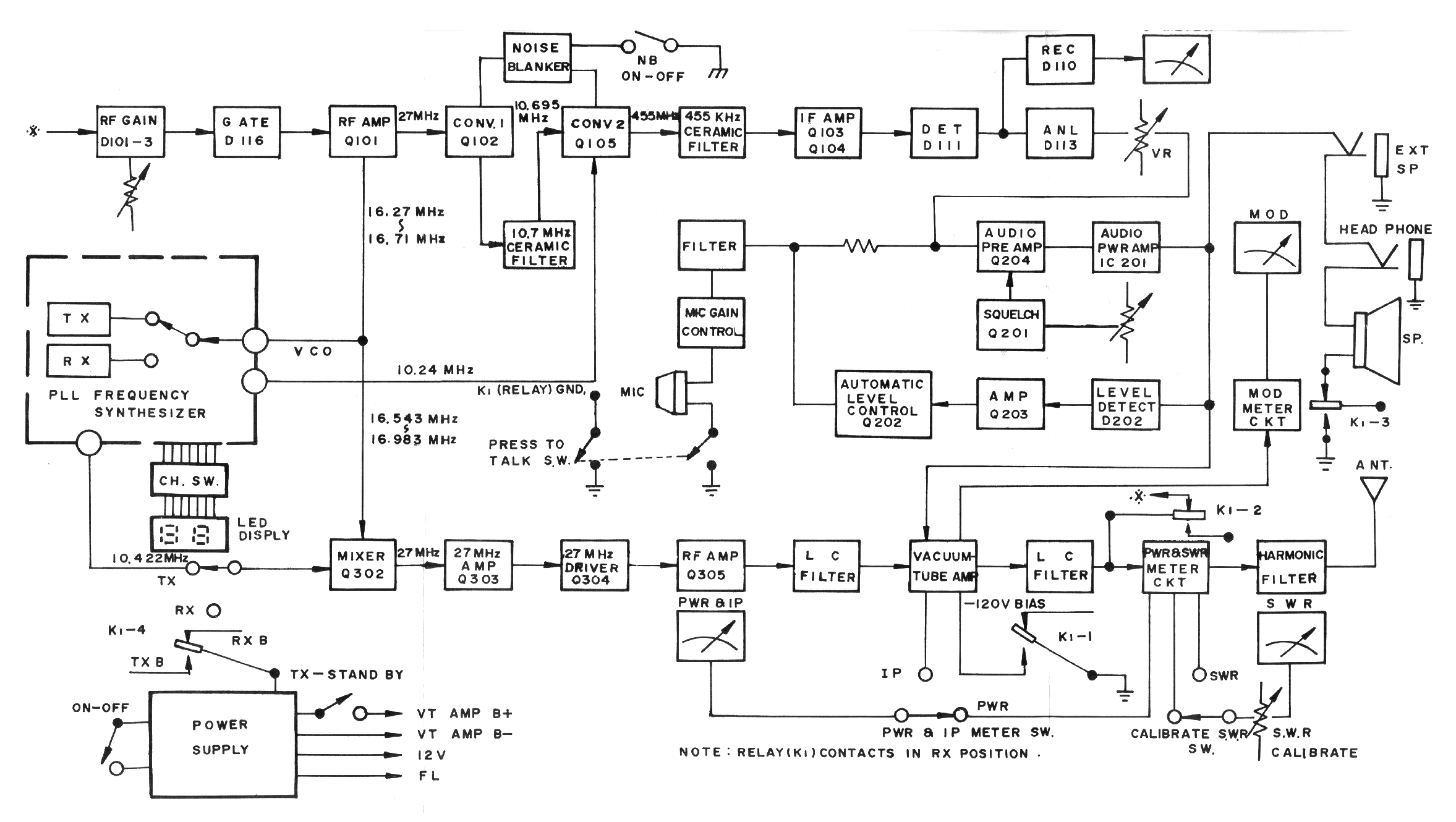
    Block Diagram
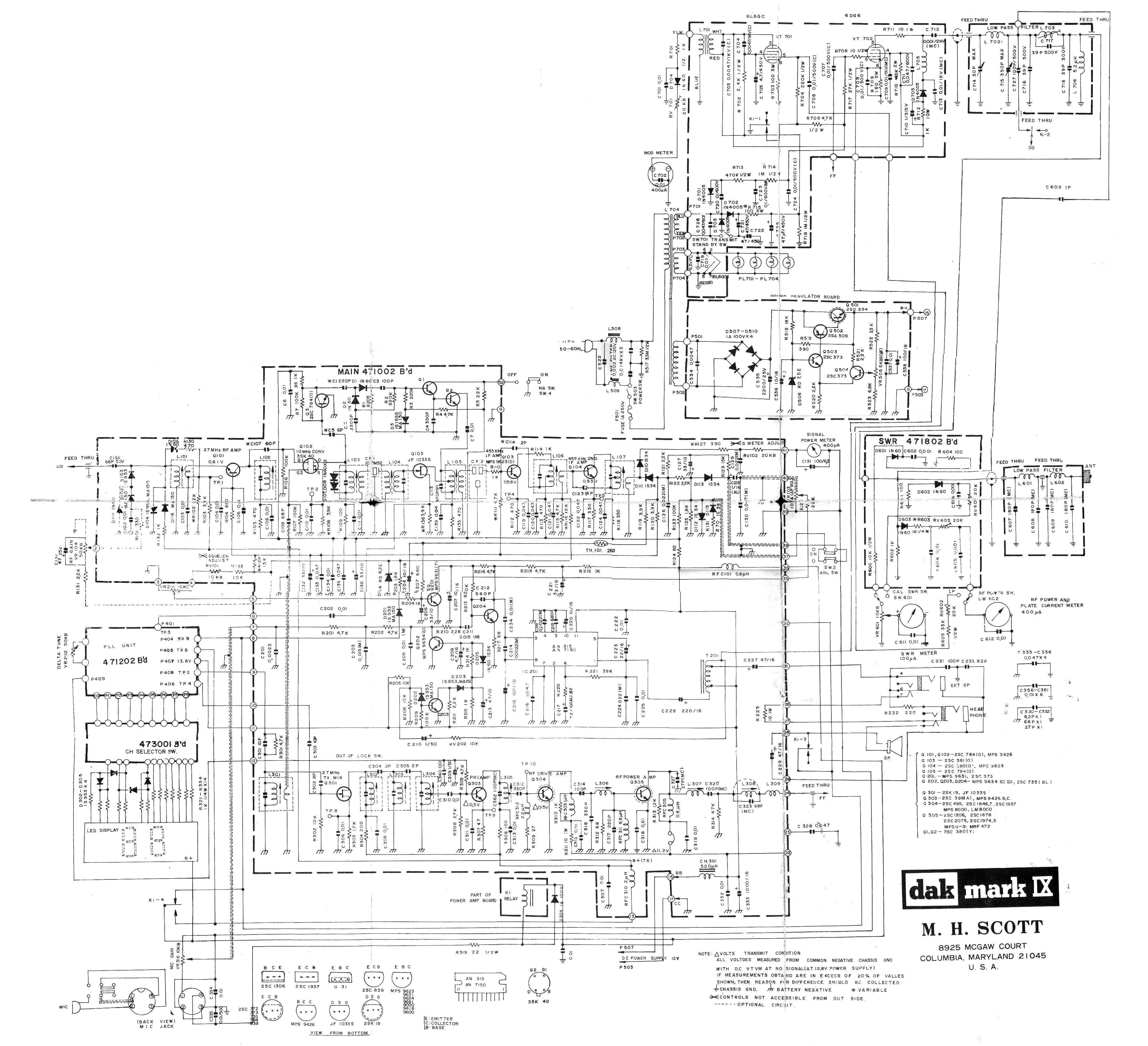
    Schematic Diagram Main (Right click and save to drive) (Some Browsers will not display)
    Schematic Diagram PLL
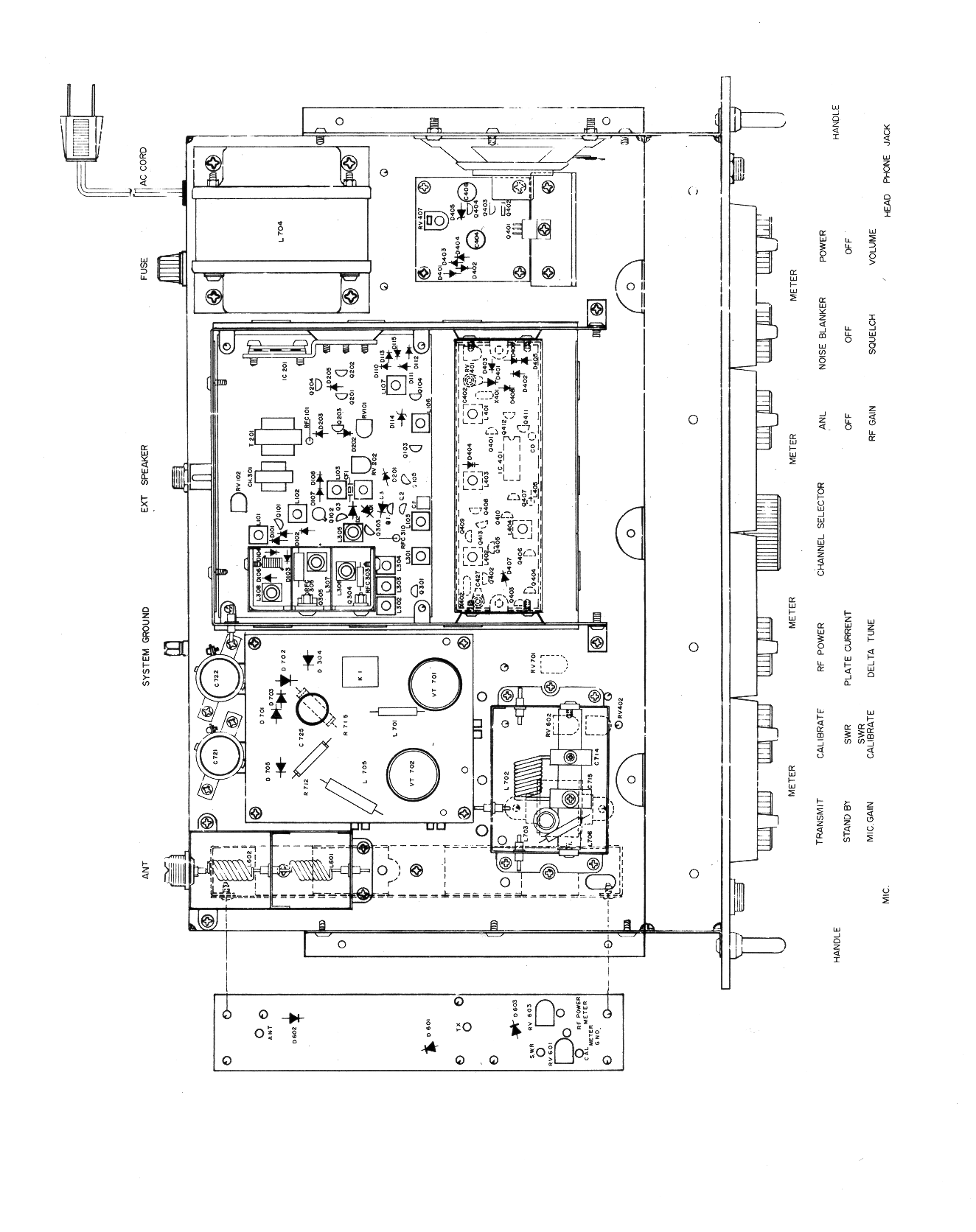
    Front View
    Rear View

PCB Layouts
    Main Layout
    PCB Board Layouts page 1
    PCB Board Layouts page 2
    PCB Board Layouts page 3
    PCB Board Layouts page 4

Mic Wiring

Stock
1- Audio
2- Shield
3- Relay
4- Transmit

Astatic (4 wire)
1- White
2- Shield
3- Black
4- Red

Astatic (6 wire)
1- White
2- Shield
3- Blue
4- Red
Black- N/C
Yellow- N/C

Daiwa EM-500
Cobra CA Series

1- Red
2- Shield
3- Black
4- White
Blue - N/C

Galaxy DC-521S (4 wire)
1- Yellow
2- Shield
3- Black
4- Red

Galaxy CB-660EI
1- White
2- Shield
3- Black
4- Red
Black - N/C

Sadelta
1- White
2- Shield
3- Green
4- Brown

Turner
1- White
2- Shield
3- Red
4- Blue
Black - N/C
Yellow - N/C



Copyright © 1998, 1999, 2000, 2001, 2002, 2003, 2004 CBTricks.com

Disclaimer: Although the greatest care has been taken while compiling these documents,

we cannot guarantee that the instructions will work on every radio presented.