RCA 14T400
Documentation Project

CBTricks.com

TIPS:
You need to have Acrobat Reader version 5 or newer installed to view the files with icon.

If the files with or icon will not display see the Site FAQ for help on printing and using this information.



Factory Service Manual
       Cover Page
       Page 2 to 18

       Page 19 to 36

Diagrams
       Page 21 / 22 (AM/FM Stereo Chassis Wiring Diagram)
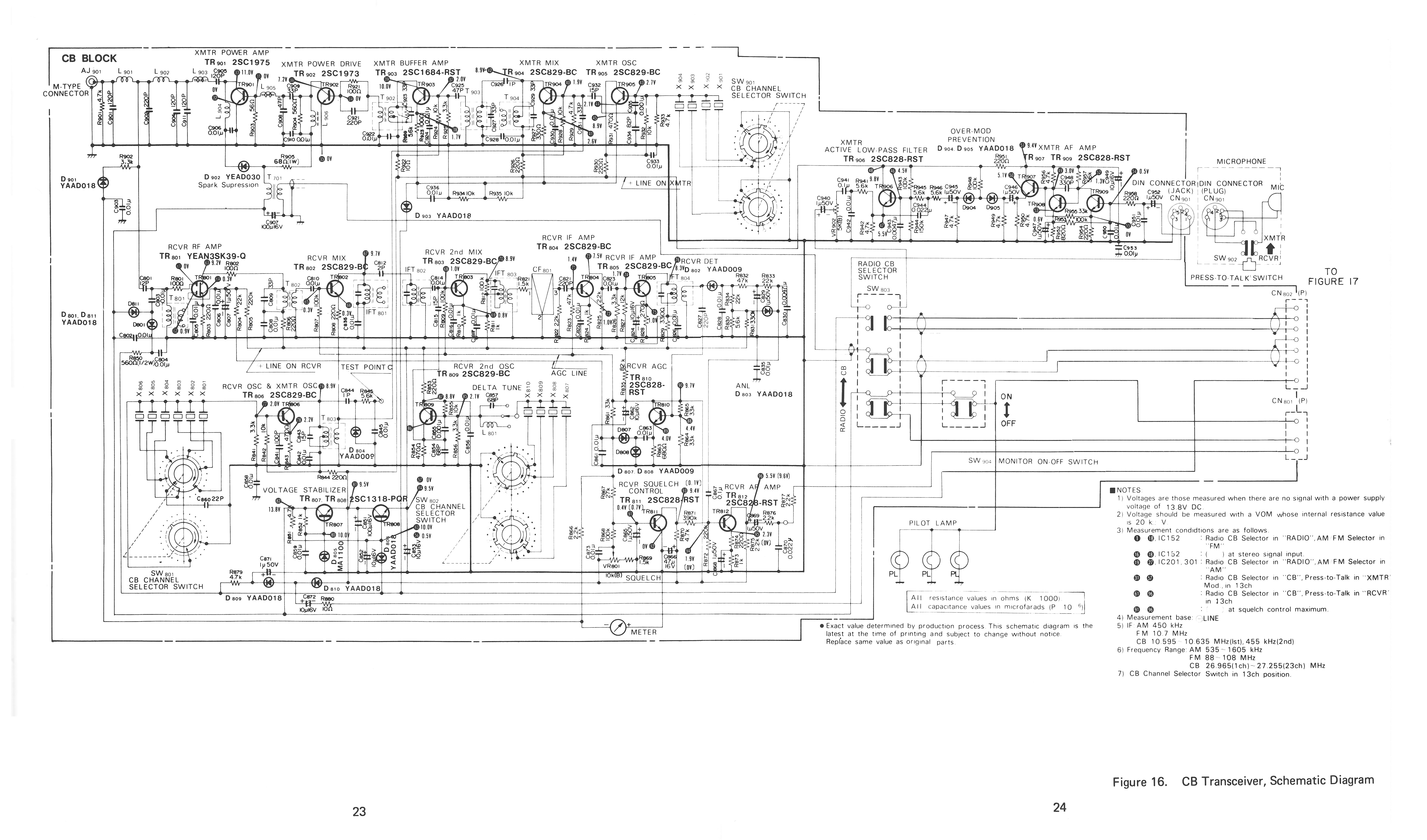
       Page 23 / 24 (Transceiver Schematic)
       Page 23 / 24 (Transceiver Schematic)
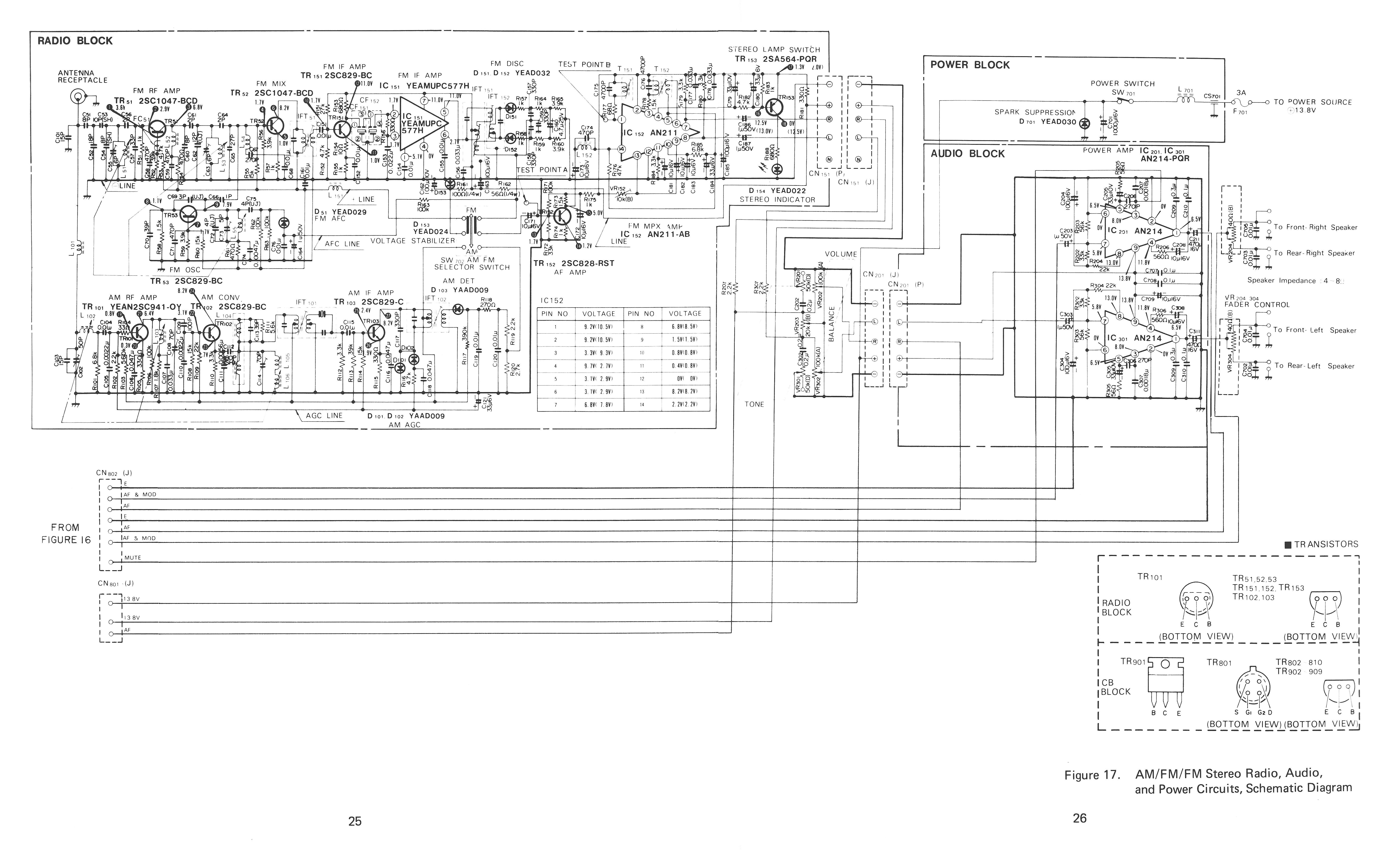
       Page 25 / 26 (AM/FM Stereo Schematic)
       Page 25 / 26 (AM/FM Stereo Schematic)
       Page 27 / 28 (Parts Removal)
       Page 29 / 30 (Chassis Exploded View)


 

 

 



Copyright © 1998, 1999, 2000, 2001, 2002, 2003, 2004, 2005 CBTricks.com

Disclaimer: Although the greatest care has been taken while compiling these documents,

we cannot guarantee that the instructions will work on every radio presented.